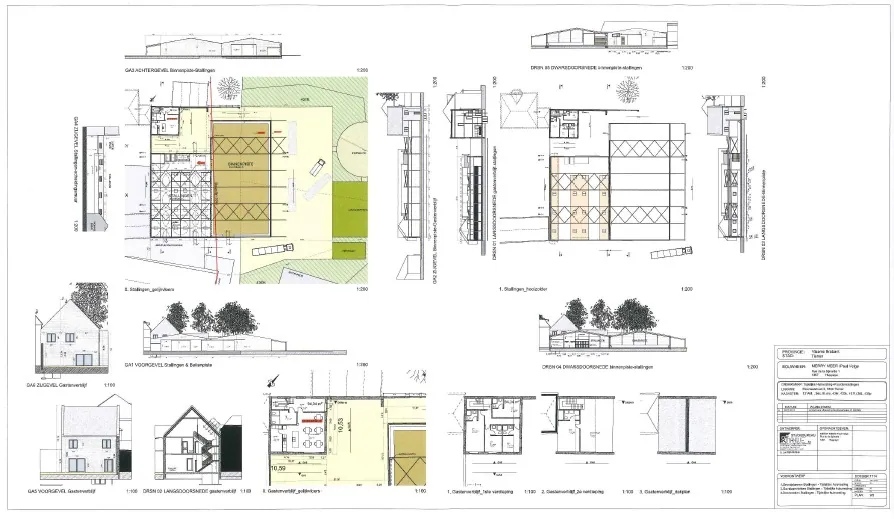
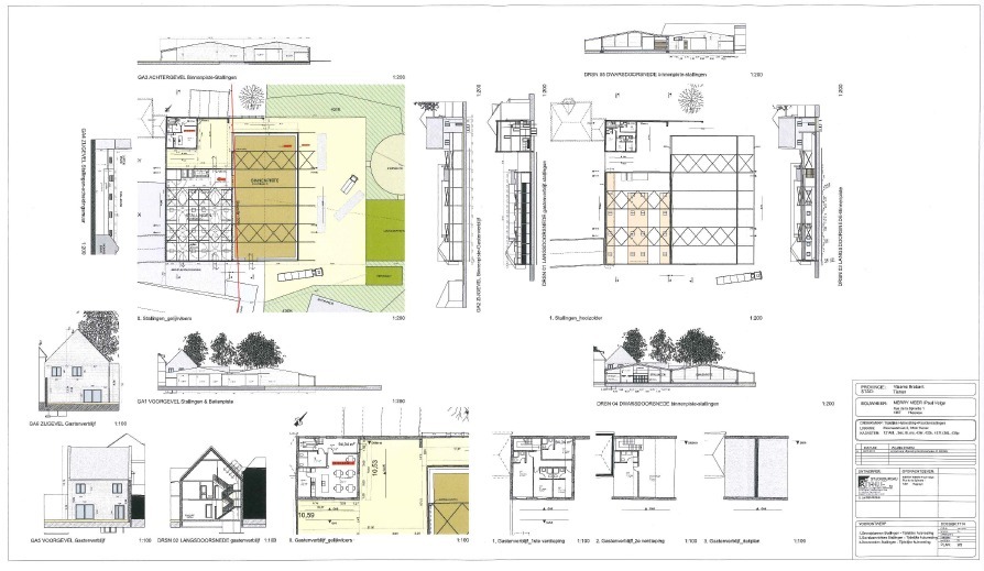
Bouw- en landbouwgrond met plannen voor een professionele paardenaccommodatie op ca. 3 ha te Tienen
Verkocht
Deze bouw- en landbouwgrond is gelegen in een landelijke omgeving te Tienen, makkelijk te bereiken via de E40 en op een boogscheut van Leuven. De grond is zeer rustig gelegen, met een prachtig open zicht op de rondom liggende akkers.
Er zijn reeds plannen voorhanden voor de aanvraag van een hippische accommodatie. De accommodatie omvat een binnenpiste, een buitenpiste, 30 stallen, een longeercirkel en een stapmolen. De plannen zijn nog naar wens aan te passen.
De ideale opportuniteit voor de (semi-) professionele ruiter!
Algemeen
| Gemeente: | Tienen |
| Referentie: | IF-2429 |
| Vraagprijs: | Verkocht |
| Type: | Grond |
| Ligging: | Vrij uitzicht, Landelijk, Aan rustige weg |
| Perceeloppervlakte: | 31.900 m² |
| Type constructie: | Traditioneel |
Wettelijke gegevens
| Kadastrale benaming: | B |
| Kadastrale Nummers: | 436l; 436p; 431f, 436r, 408l, 433h, 431e |
| Stedenbouwkundige vergunning: | Neen |
| Voorkooprecht: | Neen |
| Verkavelingsvergunning van toepassing: | Neen |
| Stedenbouwkundige bestemming: | Woongebied met landelijk karakter |
| Overstromingsgevoelig: | Mogelijk overstromingsgevoelig gebied |
| Overstromingsgebied: | Niet meegedeeld |
| Erfgoed: | Geen beschermd erfgoed |